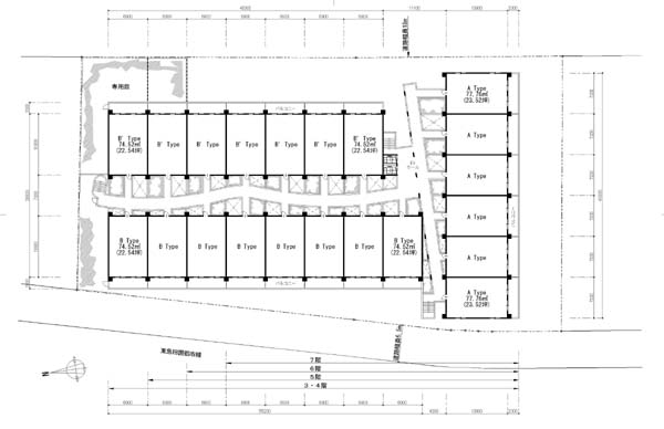
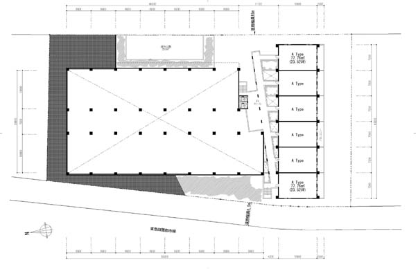
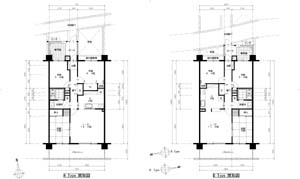
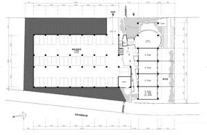
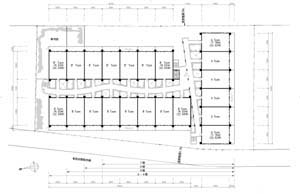
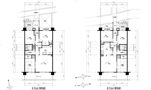
U−M分譲マンション RC造7階建
建築面積:2,396.33u
延床面積:12,411.58u



arbos Copyright (C)2001