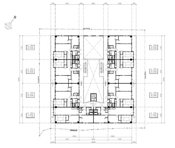
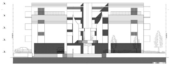
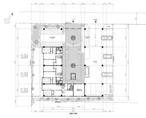
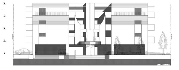
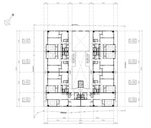
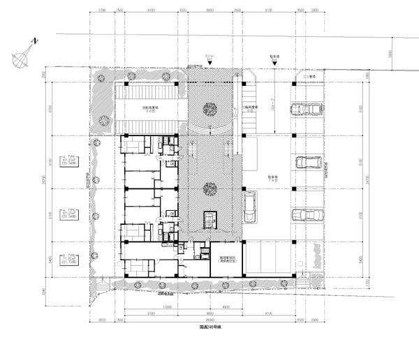
S−Aマンション RC造4階建
建築面積:620.12u
延床面積:2,121.98u



arbos Copyright (C)2001