M-K House竣工写真(来週入れます)模型写真



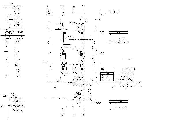
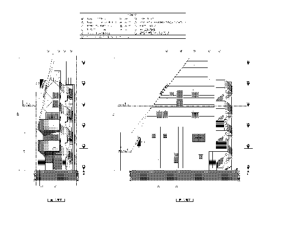
S造 5階建
建築面積 43.83u
延床面積 176.72








1f plan2-3f plan4-5f plan

elv