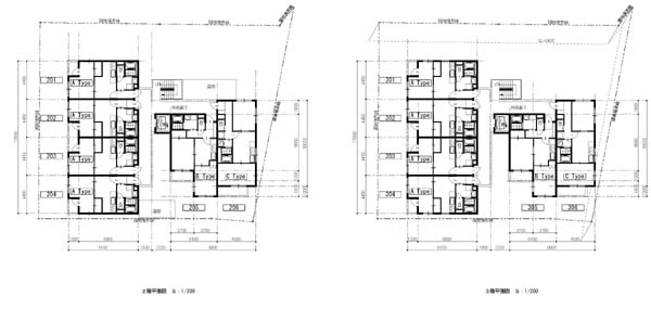
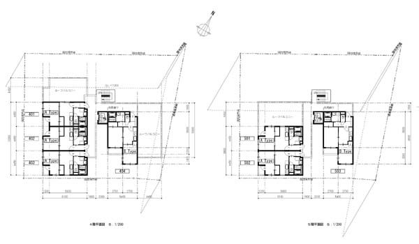
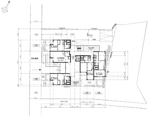
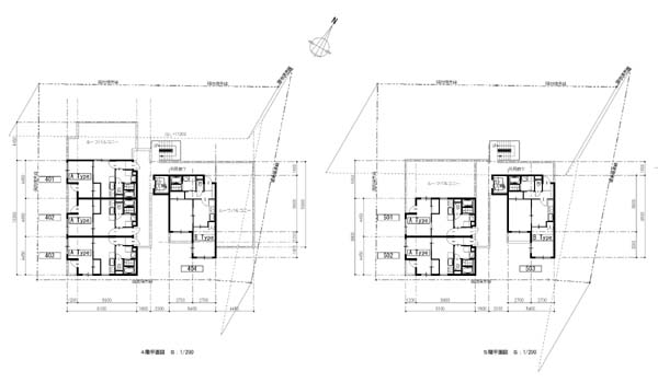
K−Kマンション RC造5階建
建築面積:273.66u
延床面積:996.81u



arbos Copyright (C)2001