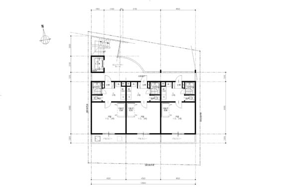
F−Tマンション RC造5階建
建築面積:118.94u
延床面積:500.15u



arbos Copyright (C)2001