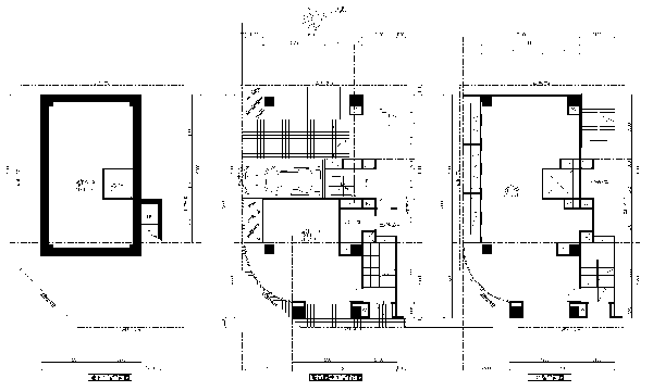
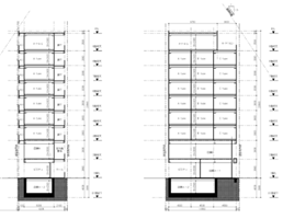
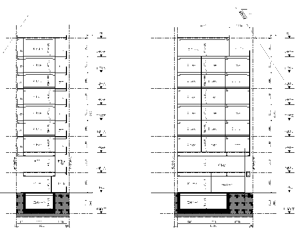
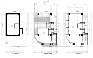
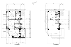
C−Uビ SRC造9階地下1階建
建築面積:111.05u
延床面積:884.87u


立面図
平面図1 平面図2


arbos Copyright (C)2000